12款占地不足百平農村別墅,有二層的,有三層的,經濟又實用!
各地區對農村自建房的宅基地批地要求不同,因此不同地區不同家庭能批到的宅地基的大小肯定不一樣,有些家庭也許就只能批到百來平的宅地基。對于任何朋友來講,不管宅地基如何,都想建一個比較大氣的房子,也好有足夠的房間為將來打算。對于像這些只批到小宅基的家庭,如何建造出大氣房子呢?那下面12款農村別墅千萬別錯過,占地不超過100平,有二層設計的,有三層設計的,造價還不高,最高不過26萬,真心是經濟又實用!
編號: DC0224
層數: 二層
結構形式: 磚混結構
主體造價: 16-20萬
開間: 10米
進深: 8米
占地面積: 79.29平方米
建筑面積: 152.55平方米


一 層: 玄關、客廳、臥室、廚房、餐廳、衛生間
二 層: 客廳、休閑廳、臥室(附陽臺)、2臥室、衛生間
閣 樓: 儲藏間
編號: DC0184
層數: 二層
結構形式: 磚混結構
主體造價: 18-23萬
開間: 10.44米
進深: 11.24米
占地面積: 97.3平方米
建筑面積: 265.1平方米


技術層: 車庫、儲藏間
一 層: 客廳、臥室、活動室、廚房、餐廳、衛生間、陽臺
二 層: 起居室、主臥(附步入式衣柜,衛生間,陽臺)、2臥室、書房、衛生間
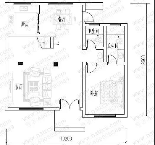
編號: DC0235
層數: 二層
結構形式: 磚混結構
主體造價: 18-22萬
開間: 10.2米
進深: 9.7米
占地面積: 96.6平方米
建筑面積: 193.2平方米


一 層: 玄關、客廳、臥室、棋牌室、廚房、餐廳、衛生間
二 層: 小客廳、臥室(附陽臺)、3臥室、衛生間
編號: DC0105
層數: 二層
結構形式: 磚混結構
主體造價: 18-22萬
開間: 8.5米
進深: 9.6米
占地面積: 79.16平方米
建筑面積: 155.8平方米


一 層: 客廳、臥室、廚房、餐廳、儲藏室、衛生間
二 層: 臥室(附陽臺)、臥室、衛生間
編號: DC0058
層數: 二層
結構形式: 磚混結構
主體造價: 15-20萬
開間: 9.8米
進深: 11.1米
占地面積: 86.29平方米
建筑面積: 181.35平方米


一 層: 玄關、客廳、臥室、廚房、餐廳、儲藏室、衛生間
二 層: 臥室(附書房,陽臺)、臥室、衛生間
編號: DC0050
層數: 二層
結構形式: 磚混結構
主體造價: 19-22萬
開間: 10.2米
進深: 9.6米
占地面積: 92.29平方米
建筑面積: 201.08平方米


一 層: 客廳、臥室(附衛生間)、廚房、餐廳、衛生間
二 層: 客廳、臥室(附衛生間)、臥室、衛生間、陽臺
編號: DC0024
層數: 三層
結構形式: 磚混結構
主體造價: 18-22萬
開間: 8.9米
進深: 8.4米
占地面積: 75.61平方米
建筑面積: 252.39平方米


一 層: 客廳、臥室、廚房(兼餐廳)、衛生間
二 層: 客廳(附陽臺)、2臥室、衛生間
三 層: 臥室(附陽臺)、2臥室、衛生間
編號: DC0021
層數: 三層
結構形式: 磚混結構
主體造價: 19-22萬
開間: 8米
進深: 10.1米
占地面積: 78.6平方米
建筑面積: 202.92平方米


一 層: 客廳、臥室、廚房兼餐廳、衛生間
二 層: 起居室(附陽臺)、臥室(附衣帽間)、臥室、衛生間
三 層: 臥室(附露臺)、臥室(附陽臺)、衛生間
編號: DC0166
層數: 三層
結構形式: 磚混結構
主體造價: 16-20萬
開間: 9.6米
進深: 10.6米
占地面積: 89.29平方米
建筑面積: 233.9平方米


一 層: 客廳、臥室、雜物間、廚房、餐廳、衛生間
二 層: 客廳(附陽臺)、3臥室、衛生間
三 層: 臥室、儲藏室、衛生間、曬臺
編號: DC0227
層數: 三層
結構形式: 磚混結構
主體造價: 15-20萬
開間: 9米
進深: 10.6米
占地面積: 97.87平方米
建筑面積: 238.3平方米



一 層: 客廳、臥室、廚房、餐廳、衛生間
二 層: 臥室(附陽臺)、臥室(附衣帽間)、臥室、衛生間
三 層: 娛樂室、露臺
編號: DC0203
層數: 三層
結構形式: 磚混結構
主體造價: 18-22萬
開間: 7米
進深: 11.1米
占地面積: 76.53平方米
建筑面積: 219.9平方米


一 層: 客廳、臥室、廚房、餐廳、衛生間、儲藏室
二 層: 小客廳(附陽臺)、2臥室、書房、衛生間
三 層: 多功能房、2臥室、衛生間、露臺
編號: DC0312
層數: 三層
結構形式: 磚混結構
主體造價: 22-26萬
開間: 9.9米
進深: 9.6米
占地面積: 92.94平方米
建筑面積: 274.1平方米


一 層: 客廳、臥室、廚房、餐廳、衛生間
二 層: 休息區、臥室(附書房,衣帽間,陽臺)、臥室、儲存間、衛生間
三 層: 臥室(附書房,衣帽間,陽臺)、臥室(附露臺)、衛生間
以上12款自建房基本可以滿足一般家庭的居住需要,屬于比較經濟實在的農村住宅,造價都是在20萬左右,最主要的是,占地面積都不超過100平。對于宅基地比較小的農村家庭特別合適!
.jpg)
本文由別墅圖紙超市編輯發布,如需了解更多,可登錄網站主頁http://www.whhuahong.cn/,或者撥打我們的免費電話400-8080-889在線咨詢。
>>>>推薦閱讀:13款大氣實用易建造的農村自建別墅戶型,有你喜歡的嗎?
>>>>推薦閱讀:小地基如何建大氣別墅?農村建二層別墅必備這8款圖紙!
>>>>推薦閱讀:10款簡潔大方經濟型三層自建別墅,第1款造價20萬,第6款最漂亮!











