一套農村別墅,兩種布局設計,三層造價只要28萬,建好驚艷十里八鄉!
生活條件日新月異的新農村,大家都在緊鑼密鼓的改善著生活居住環境;隨著農村經濟水平的提高,交通和環境大有好轉,很多在外打工的農村居民更愿意帶著積蓄回到農村老家自建房,人們對于房子的追求不僅僅停留能住人,更多時候,房子是家人面子和里子的象征。拆舊建新,五六十年代破舊低矮毫無設計感的老房子也不多見了,一棟棟新式的小洋樓拔起,映射著我們蒸蒸日上的美麗生活。
今天這款三層自建別墅,小編個人非常喜歡,時尚大氣與經濟實用兼具,建出來的實拍案例也都非常漂亮大氣!
漂亮實用三層簡歐小別墅


三層樓房在農村是相當受歡迎的,家里面家庭成員比較多的在農村自建房一般都會選擇三層的戶型,這樣基礎劃分合理,空間利用率也會比較高,家人也會住的舒心,這款別墅戶型,不管是從內看還是從外看都比較大氣恢弘,符合農村的住房需求。
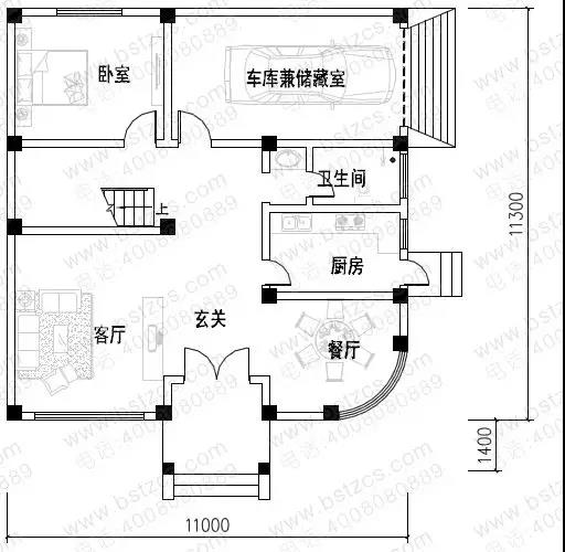
編號: DC0243,框架結構,開間11米,進深11.3米,占地面積120.85平方米,建筑面積307.63平方米,主體造價為25-32萬。
戶型圖

一層設客廳、臥室、廚房、餐廳、衛生間、車庫或儲藏室,功能非常齊全,也很合理,符合我國農村的生活需求。


二 層:客廳、臥室(附衛生間)、2臥室、書房(附陽臺)、衛生間、陽臺
三 層:2臥室(附衛生間)、露臺
三層框架結構別墅

此款別墅編號: DC0111,框架結構,開間13.2米,進深12.8米,占地面積170.38平方米,建筑面積412.72平方米,主體造價為38-42萬。
戶型圖

一 層:客廳、麻將室、客房、廚房、餐廳、衛生間、儲藏室、車庫
二 層:起居室(附陽臺)、2臥室(衛生間)、臥室、娛樂室(附陽臺)、衛生間
三 層:家庭室、儲藏室、臥室(附衛生間)、露臺


農村建房已經是一件非常平常的事情了,但是每家每戶的觀念和情況都不一樣,所以建造出來的房子,不管是從風格還是從布局來看都有所有差異,從個人角度來看,農村里現在的房子真的是沒有把錢花在刀刃上。
建房不是兒戲!!一生也許就建一次房子,住一輩子、幾代人,投入幾十上百萬,如果不專業,一旦倉促施工必定導致大量的問題和隱患,返工、誤工、費料都是常有之事,此時后悔已經為時已晚,因為建房沒有重來一次的可能,沒有辦法給你第二次意識覺醒的機會,只能打掉牙吞自己肚子里!
建成案例


這款別墅建的過程我們有全紀錄,這里就不多寫了。


簡歐的別墅一直都是農村自建房的首選風格,非常受用戶的喜歡。這款自建房戶型,落地窗、大露臺的造型惹人眼球,在農村建一套保準面子里子都有了。



農村自建房有大宅地也有小宅地,有較為方正的戶型,也有狹長的設計,這樣才是新農村的萬千姿態;農村別墅若想設計的好看,一定要實用,就算再小的宅地再小的房子,只要設計的可以,那蓋出來的房子,不比城里的別墅差!

這款別墅主體的建造,業主實際花費25萬,面積上自己加大了,只能說高手在民間~

前幾天,小編去附近農村跑了幾趟,第一個感受就是,高手在民間,農村大有富人在。農村的自建房真的太好看,到處都是獨棟小別墅。

這樣的一棟別墅建起來,不說全村最美,至少也是數一數二了吧。如今大家的生活水平質量都提高了,要求房屋造型外觀水平也提高了,不再像六、七十年代那種小茅屋 、瓦房的住宅樣式了,現在的農村隨處可見到一棟棟漂亮的別墅。你們那里的農村是否也是一樣?
.jpg)
本文由別墅圖紙超市編輯發布,如需了解更多,可登錄網站主頁http://www.whhuahong.cn/,或者撥打我們的免費電話400-8080-889在線咨詢。
>>>>推薦閱讀:【案例】4套外觀精致布局妙的別墅,農村建房這樣建才實在!
>>>>推薦閱讀:【分享】江西網友花30萬建成帶門面的農村別墅,臨街地基很適合!
>>>>推薦閱讀:6套漂亮農村別墅戶型,進深10米,28萬左右就能建好











