4套雙拼別墅建房案例,外觀漂亮,戶型好,兄弟更親近!
目前國家土地政策收緊,宅基地不好批了,很多家庭,兄弟兩人共享父母一塊宅基地,這時候建一棟兄弟雙拼戶型就是一個不錯的選擇了。今天就來看看幾款雙拼別墅以及它的建房案例吧,看看你最喜歡哪一款?
編號: DC0163
層數: 三層
結構形式: 磚混結構
主體造價: 40-48萬
開間: 18米
進深: 11.5米
占地面積: 214.14平方米
建筑面積: 531.58平方米


一 層: 客廳、臥室、廚房、餐廳、儲藏室、衛生間
二 層: 客廳(附陽臺)、2臥室、衛生間
三 層: 2臥室、衛生間、露臺

編號: DC0200
層數: 三層
結構形式: 磚混結構
主體造價: 36-42萬
開間: 16米
進深: 11米
占地面積: 165.95平方米
建筑面積: 460.7平方米


一 層: 客廳、臥室、廚房、餐廳、衛生間
二 層: 客廳(附陽臺)、2臥室、書房、衛生間
三 層: 客廳、2臥室、衛生間、露臺

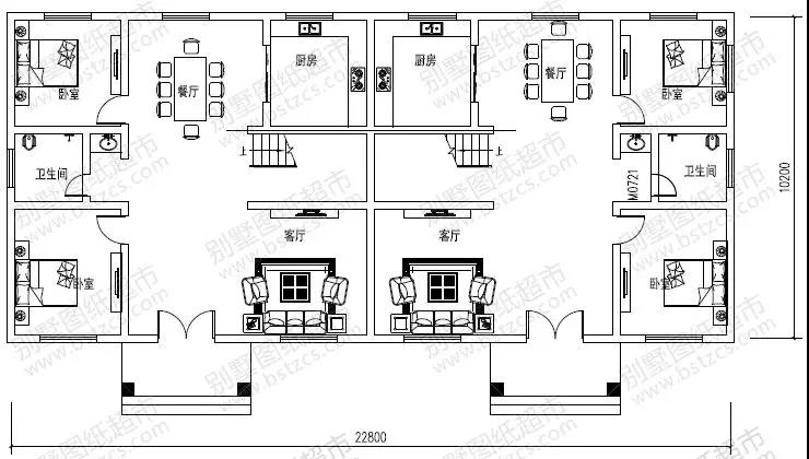
編號: DC0222
層數: 二層
結構形式: 磚混結構
主體造價: 32-38萬
開間: 22.8米
進深: 10.2米
占地面積: 239.66平方米
建筑面積: 599.15平方米


一 層: 客廳、2臥室、廚房、餐廳、衛生間
二 層: 客廳(附陽臺)、臥室(附陽臺)、3臥室、書房、衛生間
閣 樓: 儲藏間

編號: DC0240
層數: 二層
結構形式: 磚混結構
主體造價: 36-42萬
開間: 18.24米
進深: 11.44米
占地面積: 202.94平方米
建筑面積: 405.88平方米


一 層: 客廳、臥室、廚房、餐廳、儲藏室、衛生間
二 層: 客廳、臥室(附陽臺)、2臥室、書房、衛生間

對于雙拼別墅來說,兩戶一墻之隔,生活起居上能夠相互照應,兄弟之間住得近凡事也好商量,也好共同照顧父母,想住誰家都可以。
.jpg)
本文由別墅圖紙超市編輯發布,如需了解更多,可登錄網站主頁http://www.whhuahong.cn/,或者撥打我們的免費電話400-8080-889在線咨詢。
>>>>推薦閱讀:【案例】三層農村別墅超經典,中式裝修卻更惹眼,高貴而典雅!
>>>>推薦閱讀:農民賺錢不容易,幾款性價比高又實用的別墅推薦給大家!
>>>>推薦閱讀:6款經典雙拼別墅設計圖,兄弟建房有這些就夠了











